Description
Située à Vitrolles dans un quartier calme, vous serez séduit par cette maison mitoyenne de type 4 en R+1 d'environ 80m2 idéalement implantée à proximité des commerces, des axes autoroutiers, aéroport et gares,
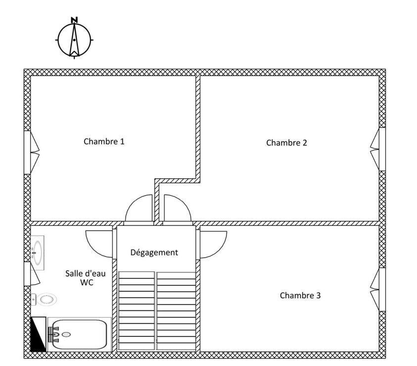
Elle se compose au RDC d'une cuisine ouverte aménagée et équipée, d'un salon / salle à manger spacieux et lumineux et d'un wc.
A l'étage vous retrouverez 3 chambres avec dressing, une salle d'eau avec wc.
Coté extérieur, vous profiterez d'un jardin cosy, d'une terrasse carrelée, d'une piscine plein sud, et d'un garage avec mezzanine, le tout sur une parcelle d'environ 180m2
Aucun travaux, double vitrage et moustiquaires, climatisation réversible au rdc et à l'étage, à visiter sans tarder.
Les informations sur les risques auxquels ce bien est exposé sont disponibles sur le site Géorisques : www.georisques.gouv.fr
Caractéristiques
- Honoraires charge
- mandant
- Type
- maison
- État général
- bon
- Environnement
- lotissement
- Orientation
- Sud
- Disponibilité
- à l'acte
- Construction
- 2010
- Surface terrain
- 180 m²
- Surface habitable
- 80 m²
- Nb. chambres
- 3
- Nb. salles de bains
- 0
- Nb. salles d'eau
- 1
- Nb. cuisines
- 1
- Nb. garages
- 1
- Types de cuisine
- équipement de base et aménagée
- Chauffages
- électricité
- Terrasse
- Piscine
- Tout à l'égout
- Taxe foncière
- 1 513,00 €
Localisation Vitrolles, 13127
Pour des raisons de confidentialité, la géolocalisation de ce bien a été dégradée.
Tous les outils pour vos projets immobiliers
Découvrez Mon CID,
mon compagnon immobilier digital
Accès à toutes les ventes immobilières,
boussole à réalité augmentée,
tester le débit de votre futur achat,
calculatrice de mensualité, etc.
Détail des pièces
Performance énergétique
- A< 70
- B70 - 110102kWh/m².an3 *kg CO2/m².an
- C110 - 180
- D180 - 250
- E250 - 330
- F330 - 420
- G> 420
* Dont émissions de gaz à effet de serre
peu d'émissions de CO2- A< 63kg CO2/m².an
- B6 - 11
- C11 - 30
- D30 - 50
- E50 - 70
- F70 - 100
- G> 100
Estimation des dépenses annuelles d'énergie pour un usage standard
entre 530 € et 780 € / an *
* Prix moyens des énergies indexés pour l'année 2021 (abonnement compris).
Déjà vendu !
par Valerie Jullian (EI)

Agent commercial en immobilier immatriculé au RSAC de SALON DE PROVENCE sous le n°894343441