Description
Emeline Beaudoux votre agent chez LF immo vous propose cette maison sur 90m2 habitable dans le quartier de Croix Saint Pierre.
Proche métro à 12mn à pieds, marché mardi, vendredi et dimanche, tous commerces sur la place de l'égalité.
Cette charmante maison de 90m² offrant 5 pièces spacieuses idéales pour une famille.
Cette propriété chaleureuse vous emmène dans un espace cocooning, la décoration et l'atmosphère très soigné par le propriétaire.
Profitez d'un espace de vie lumineux et convivial, idéal pour les moments de détente en famille. Située dans une rue à sens unique cette maison est parfaite pour ceux qui recherchent la tranquillité tout en restant proche des commodités. Ne manquez pas cette opportunité unique d'acquérir un bien de qualité à Croix.
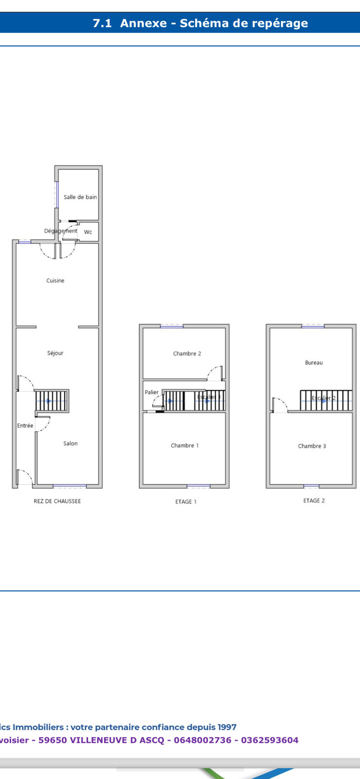
Elle se compose d'un salon-séjour en open-space sur la cuisine vous amenant vers la salle d'eau et une courette, il s'y trouve également un bureau.
Au 1er étage 2 pièces dont une belle chambre avec de beaux volumes, parquet d'origine revalorisé avec soin.
Au second 2 pièces passantes pouvant faire office de chambres, bureau? dressing? ou autre? à votre envie.
Contactez-moi dès maintenant pour organiser une visite!
Les plus de la maison :
De beaux volumes avec clarté
Une maison soigné avec gout
Le secteur proche toutes commodités
Un lieu paisible et apaisant
Les informations sur les risques auxquels ce bien est exposé sont disponibles sur le site Géorisques : www.georisques.gouv.fr
Caractéristiques
- Honoraires charge
- mandant
- Type
- maison
- État général
- bon
- Environnement
- urbain
- Disponibilité
- à l'acte
- Construction
- 1930
- Surface habitable
- 90 m²
- Nb. chambres
- 3
- Nb. salles d'eau
- 1
- Nb. cuisines
- 1
- Types de cuisine
- équipée
- Chauffages
- gaz
- Tout à l'égout
- Taxe foncière
- 573,00 €
Localisation Croix, 59170
Pour des raisons de confidentialité, la géolocalisation de ce bien a été dégradée.
Tous les outils pour vos projets immobiliers
Découvrez Mon CID,
mon compagnon immobilier digital
Accès à toutes les ventes immobilières,
boussole à réalité augmentée,
tester le débit de votre futur achat,
calculatrice de mensualité, etc.
Performance énergétique
- A< 70
- B70 - 110
- C110 - 180
- D180 - 250
- E250 - 330261kWh/m².an57 *kg CO2/m².an
- F330 - 420
- G> 420
* Dont émissions de gaz à effet de serre
peu d'émissions de CO2- A< 6
- B6 - 11
- C11 - 30
- D30 - 50
- E50 - 7057kg CO2/m².an
- F70 - 100
- G> 100
Estimation des dépenses annuelles d'énergie pour un usage standard
entre 1 530 € et 2 120 € / an *
* Prix moyens des énergies indexés pour l'année 2023 (abonnement compris).
Déjà vendu !
par Emeline Beaudoux (EI)

Agent commercial en immobilier immatriculé au RSAC de Lille sous le n°888415213