

1 195 000 € à partir de 5 275 € / mois *
Loft/maison à Obernai
Obernai, 67210 - 0 km
- 350 m²
- 2200 m²
- 6 pièces
- 3 chambres
- 1 garage
- 1 sdb
Opportunité à saisir à Villé!
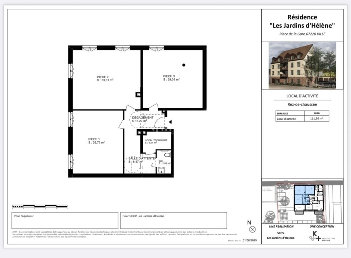
À découvrir : un local commercial en angle de 115 m², situé en rez-de-chaussée d’un immeuble de 10 logements. Grâce à ses 6 grandes fenêtres, il bénéficie d’une luminosité naturelle exceptionnelle et d’une excellente visibilité, idéale pour une activité professionnelle.
Le local est divisé en trois lots privatifs avec une salle d’attente commune incluant des sanitaires. Chaque acquéreur sera copropriétaire de cet espace commun, pour une utilisation partagée équilibrée.
Une solution intelligente et avantageuse, idéale pour accueillir plusieurs activités complémentaires dans un même lieu. Cela permet de dynamiser l'espace, de mutualiser certains coûts et de créer une atmosphère professionnelle et conviviale.
⸻
Lots disponibles :
• Local 1 – 26.73 m² : 82.863 € TTC
• Local 2 – 33.61 m² : 104.191 € TTC
• Local 3 – 29.09 m² : 90.179 € TTC
Chaque acquéreur contribue au prorata à la salle d'attente avec sanitaires, au local technique et au dégagement desservant les 3 pièces.
⸻
Caractéristiques :
• Surface totale : 115 m² sur un plateau libre
• Disposition en angle : excellente visibilité
• 6 fenêtres : belle luminosité naturelle
• Aménagement et finitions personnalisables
• Usage idéal : cabinets médicaux, bureaux, professions libérales, crèche, etc.
• Petite copropriété dynamique de 10 logements
Emplacement stratégique, facilement accessible et bien desservi.
Disponibilité prévue : 3ᵉ trimestre 2026.
⸻
Nous sommes à l’écoute de toute proposition, que vous soyez investisseur ou entrepreneur. Contactez-nous pour plus d’informations ou une visite.
💰 Local d'activité proposée au prix de vente de 359.848 euros.
📞N'attendez plus pour concrétiser votre projet professionnel à Villé. Pour toute information, contactez Andreea Lako dès aujourd'hui !
Les informations sur les risques auxquels ce bien est exposé sont disponibles sur le site Géorisques : www.georisques.gouv.fr
Découvrez Mon CID,
mon compagnon immobilier digital
Accès à toutes les ventes immobilières,
boussole à réalité augmentée,
tester le débit de votre futur achat,
calculatrice de mensualité, etc.
* Calculs effectués sur la base d'un prêt à taux fixe de 3,31% sur une durée de 25 ans avec un apport de 10% et hors assurance. Le coût de l'assurance de prêt dépend du capital assuré, de votre âge, de la durée du prêt, du taux d'intérêt du prêt, de votre questionnaire de santé et/ou médical, et de votre profession. Les calculs et solutions indiqués ne revêtent aucun caractère contractuel et ne sont en aucun cas une offre de prêt. Seuls les banques et organismes de financement sont habilités à accorder un financement. Pour tout crédit immobilier, vous êtes protégés par un délai de réflexion de 10 jours. Aucun versement de quelque nature que ce soit ne peut être exigé d'un particulier avant l'obtention d'un ou de plusieurs prêts d'argent. L'achat est subordonné à l'obtention du prêt. S'il n'est pas obtenu, le vendeur doit rembourser les sommes versées. Un crédit vous engage et doit être remboursé. Vérifiez vos capacités de remboursement avant de vous engager.
Prenez contact avec Andreea Dorina Lako (EI)
Agent commercial en immobilier immatriculé au RSAC de COLMAR sous le n°952429751
1 195 000 € à partir de 5 275 € / mois *
Obernai, 67210 - 0 km
323 983 € H.I. à partir de 1 430 € / mois *
Ville, 67220
245 247 € H.I. à partir de 1 083 € / mois *
Ville, 67220
100 000 € H.I.
Saint Pierre, 67140
123 050 € H.I. à partir de 543 € / mois *
Nothalten, 67680
234 000 € à partir de 1 033 € / mois *
Eckbolsheim, 67201