Description
À vendre : Magnifique ferme à rénover à Surdoux, France. Cette propriété exceptionnelle offre un cadre de vie paisible et authentique, idéal pour les amoureux de la nature.
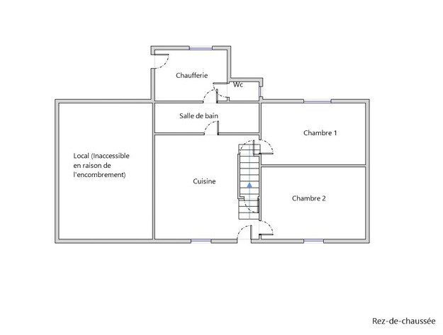
Avec une surface habitable de 94 m² sur une base de 5 pièces, (2 grandes pièces viendront en complément).
1500m2 de bâtiments: granges, stabulation, hangar, un vaste terrain de 10ha, (avec la possibilité d'acquérir 23 ha en plus) cette ferme est parfaite pour ceux qui recherchent espace et tranquillité.
Idéale pour développer une activité agricole ou avoir de l'espaces pour ses animaux (chevaux et autres).
L'intérieur de la ferme est à rénover entièrement (sauf toitures), vous pourrez créer vos espaces de vie confortable pour toute la famille.
Les bâtiments agricoles sont fonctionnels et pratique.
À l'extérieur, vous pourrez créer un grand jardin arboré, exposé plein sud, idéal pour les moments de détente en plein air.
La ferme dispose également de dépendances et d'espaces de stockage pratiques.
Cette propriété unique est proposée au prix de283 700€, une opportunité rare sur le marché. Ne manquez pas cette occasion d'acquérir un véritable havre de paix à Surdoux. Contactez-nous dès maintenant pour organiser une visite et découvrir ce joyau de la campagne française.
Les informations sur les risques auxquels ce bien est exposé sont disponibles sur le site Géorisques : www.georisques.gouv.fr
Caractéristiques
- Honoraires charge
- mandant
- Type
- ferme
- État général
- à rénover
- Environnement
- campagne non-isolée
- Orientation
- Sud
- Disponibilité
- à l'acte
- Surface totale
- 1780 m²
- Surface terrain
- 102400 m²
- Surface habitable
- 200 m²
Localisation Surdoux, 87130
Pour des raisons de confidentialité, la géolocalisation de ce bien a été dégradée.
Tous les outils pour vos projets immobiliers
Découvrez Mon CID,
mon compagnon immobilier digital
Accès à toutes les ventes immobilières,
boussole à réalité augmentée,
tester le débit de votre futur achat,
calculatrice de mensualité, etc.
Performance énergétique
- A< 70
- B70 - 110
- C110 - 180
- D180 - 250
- E250 - 330
- F330 - 420
- G> 420562kWh/m².an164 *kg CO2/m².anLogement à consommation énergétique excessive
* Dont émissions de gaz à effet de serre
peu d'émissions de CO2- A< 6
- B6 - 11
- C11 - 30
- D30 - 50
- E50 - 70
- F70 - 100
- G> 100164kg CO2/m².an
Estimation des dépenses annuelles d'énergie pour un usage standard
entre 6 470 € et 8 810 € / an *
* Prix moyens des énergies indexés pour l'année 2021 (abonnement compris).
Simulation de prêt
* Calculs effectués sur la base d'un prêt à taux fixe de 3,31% sur une durée de 25 ans avec un apport de 10% et hors assurance. Le coût de l'assurance de prêt dépend du capital assuré, de votre âge, de la durée du prêt, du taux d'intérêt du prêt, de votre questionnaire de santé et/ou médical, et de votre profession. Les calculs et solutions indiqués ne revêtent aucun caractère contractuel et ne sont en aucun cas une offre de prêt. Seuls les banques et organismes de financement sont habilités à accorder un financement. Pour tout crédit immobilier, vous êtes protégés par un délai de réflexion de 10 jours. Aucun versement de quelque nature que ce soit ne peut être exigé d'un particulier avant l'obtention d'un ou de plusieurs prêts d'argent. L'achat est subordonné à l'obtention du prêt. S'il n'est pas obtenu, le vendeur doit rembourser les sommes versées. Un crédit vous engage et doit être remboursé. Vérifiez vos capacités de remboursement avant de vous engager.
Cette annonce vous intéresse ?
Prenez contact avec Ludovic Cornillon (EI)

Agent commercial en immobilier immatriculé au RSAC de LIMOGES sous le n°492413026