

145 000 € à partir de 640 € / mois *
F2 avec balcon, cave et garage
Soufflenheim, 67620
- 50 m²
- 2 pièces
- 1 chambre
- 1 garage
- 1 sdb
Immeuble à Réhabiliter – Opportunité à Niederbronn-les-Bains
Au cœur du Parc naturel régional des Vosges du Nord, Niederbronn-les-Bains séduit par son cadre verdoyant, son activité thermale et ses nombreuses commodités (commerces, restaurants, écoles, transports). La ville se distingue également par son dynamisme associatif, offrant de nombreuses associations sportives, culturelles et sociales qui contribuent à une qualité de vie agréable et conviviale.
Emplacement stratégique
Proche des commerces, services et transports.
Stationnement facilité avec de nombreux parkings à proximité et places gratuites.
Caractéristiques du bien
Rez-de-chaussée : F1 de 37m².
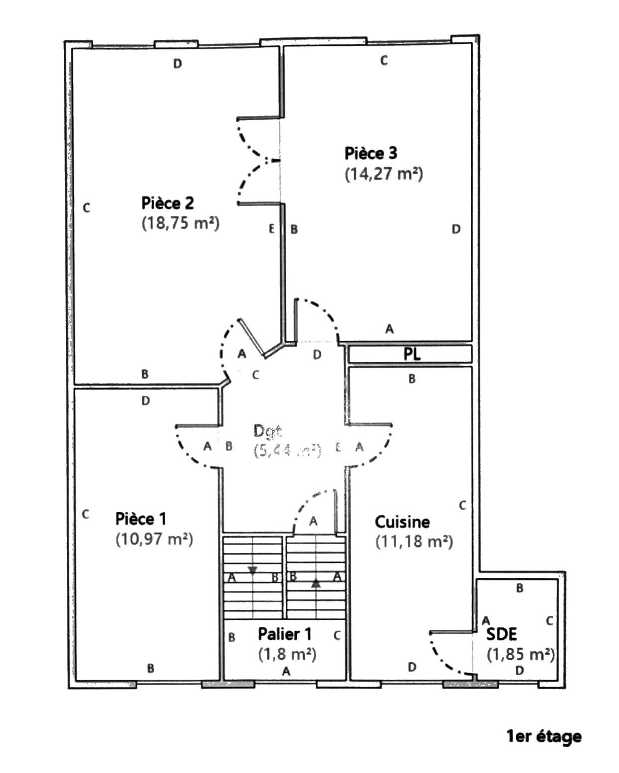
1er étage : F3 de 62 m².
2e étage : F3 de 63 m².
Surface au sol.
Dernier niveau : F1 d'environ 33 m².
Petite dépendance attenante, idéale pour stockage ou espace supplémentaire.
Gros potentiel à exploiter !
Avec des travaux de rénovation, ce bien offre de multiples possibilités : investissement locatif, résidence principale ou projet sur mesure.
Pour plus d'informations ou pour fixer un rendez-vous, n’hésiter pas à nous contacter.
Pour vos projets immobiliers, nous pouvons vous mettre en contact avec des professionnels du financement afin de faciliter votre acquisition.
Les informations sur les risques auxquels ce bien est exposé sont disponibles sur le site Géorisques : www.georisques.gouv.fr
Pour des raisons de confidentialité, la géolocalisation de ce bien a été dégradée.
Découvrez Mon CID,
mon compagnon immobilier digital
Accès à toutes les ventes immobilières,
boussole à réalité augmentée,
tester le débit de votre futur achat,
calculatrice de mensualité, etc.
entre 4 640 € et 6 310 € / an *
* Prix moyens des énergies indexés pour l'année 2023 (abonnement compris).
* Calculs effectués sur la base d'un prêt à taux fixe de 3,31% sur une durée de 25 ans avec un apport de 10% et hors assurance. Le coût de l'assurance de prêt dépend du capital assuré, de votre âge, de la durée du prêt, du taux d'intérêt du prêt, de votre questionnaire de santé et/ou médical, et de votre profession. Les calculs et solutions indiqués ne revêtent aucun caractère contractuel et ne sont en aucun cas une offre de prêt. Seuls les banques et organismes de financement sont habilités à accorder un financement. Pour tout crédit immobilier, vous êtes protégés par un délai de réflexion de 10 jours. Aucun versement de quelque nature que ce soit ne peut être exigé d'un particulier avant l'obtention d'un ou de plusieurs prêts d'argent. L'achat est subordonné à l'obtention du prêt. S'il n'est pas obtenu, le vendeur doit rembourser les sommes versées. Un crédit vous engage et doit être remboursé. Vérifiez vos capacités de remboursement avant de vous engager.
Prenez contact avec Mohammed Dib (EI)
Agent commercial en immobilier immatriculé au RSAC de Strasbourg sous le n°512070020
145 000 € à partir de 640 € / mois *
Soufflenheim, 67620
164 000 € à partir de 724 € / mois *
Uberach (Val de Moder), 67350
990 000 € à partir de 4 370 € / mois *
Strasbourg, 67200 - 17,9 km
270 000 € à partir de 1 192 € / mois *
Niederschaeffolsheim, 67500 - 7,5 km
250 000 € à partir de 1 104 € / mois *
Preuschdorf, 67250
249 000 € à partir de 1 099 € / mois *
Kaltenhouse, 67240 - 11,6 km