

241 000 € à partir de 1 064 € / mois *
Maison de ses dépendances
Bertincourt, 62124
- 221 m²
- 2143 m²
- 12 pièces
- 7 chambres
- 1 garage
- 1 sdb
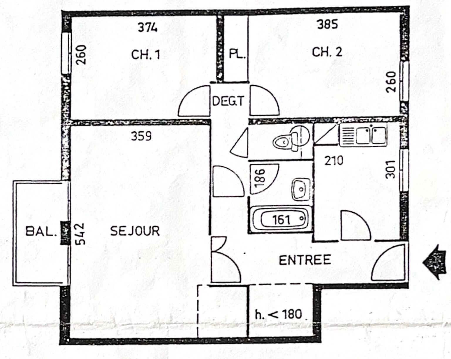
Situé à la fois dans l'hypercentre et côté jardin de la résidence, cet appartement de 3 pièces de 60m2 saura vous séduire par son agencement optimal et ses finitions de qualité. Vue dégagée et sans vis-à-vis.
Côté pratique, proximité des commerces, des écoles. A cinq minutes à pied des transports en commun ligne RER C et train N, U.
Base de loisir, Golf, centre aquatique, théâtre, universités, pistes cyclables, restaurants.
Ce bien est composé de :
- entrée
- cuisine équipé
- séjour donnant sur un balcon
- cellier
- deux chambres (dont une avec dressing)
- salle d'eau récente
- WC indépendant
Une cave et une place de parking privée complète ce bien.
Les plus :
- lumineux
- sans vis-à-vis
- voie piétonne
- rénové avec goût
- double vitrage
- chauffe eau 80L Sauter connecté
- copropriété à faible charges
Contactez-moi dès maintenant pour organiser une visite.
Les informations sur les risques auxquels ce bien est exposé sont disponibles sur le site Géorisques : www.georisques.gouv.fr
Découvrez Mon CID,
mon compagnon immobilier digital
Accès à toutes les ventes immobilières,
boussole à réalité augmentée,
tester le débit de votre futur achat,
calculatrice de mensualité, etc.
entre 1 020 € et 1 420 € / an *
* Prix moyens des énergies indexés pour l'année 2023 (abonnement compris).
* Calculs effectués sur la base d'un prêt à taux fixe de 3,31% sur une durée de 25 ans avec un apport de 10% et hors assurance. Le coût de l'assurance de prêt dépend du capital assuré, de votre âge, de la durée du prêt, du taux d'intérêt du prêt, de votre questionnaire de santé et/ou médical, et de votre profession. Les calculs et solutions indiqués ne revêtent aucun caractère contractuel et ne sont en aucun cas une offre de prêt. Seuls les banques et organismes de financement sont habilités à accorder un financement. Pour tout crédit immobilier, vous êtes protégés par un délai de réflexion de 10 jours. Aucun versement de quelque nature que ce soit ne peut être exigé d'un particulier avant l'obtention d'un ou de plusieurs prêts d'argent. L'achat est subordonné à l'obtention du prêt. S'il n'est pas obtenu, le vendeur doit rembourser les sommes versées. Un crédit vous engage et doit être remboursé. Vérifiez vos capacités de remboursement avant de vous engager.
Prenez contact avec Catherine Delaunay (EI)
Agent commercial en immobilier immatriculé au RSAC de versailles sous le n°819384579
241 000 € à partir de 1 064 € / mois *
Bertincourt, 62124
50 000 € à partir de 221 € / mois *
Rocquigny, 62450
673 000 € H.I. à partir de 2 971 € / mois *
Eckbolsheim, 67201 - 18,7 km
375 000 € à partir de 1 655 € / mois *
Neuilly Sur Marne, 93330
139 000 € à partir de 614 € / mois *
Epinay Sur Seine, 93800
562 000 € à partir de 2 481 € / mois *
Rohrwiller, 67410